Projekte
PROJEKTE: BAUBERATUNG
Digitale PRPROJEKTE: BAUPLANUNG
VeranstaltungenPROJEKTE: AUSFÜHRUNG
ProduktePROJEKTE - BAUBERATUNG: Blower-Door-Test I Thermografiediagnostik I Gebäudeenergieberatung I Energieausweis
PROJEKTE - BAUPLANUNG: Bestandsaufnahme I Entwurfsplanung I Konstruktions- und Ausführungsplanung
BV: Bestandsaufnahme eines MFH mit 3 WEH
Ort: Reinkamp 3 22117 Hamburg - Öjendorf
Bauherr: Herr Hebib Djabiri
Leistungen (Leistungserstellung: 07/2019):
- Bestandsaufnahme: Grundrisse, Ansichten, Querschnitt
- Berechnungen: Gebäudegrundfläche, Nutzflächen,
Konstruktionsflächen, Bruttorauminhalt, Baubeschreibung
BV: Umnutzungsplanung Wohnraum im Dachgeschoss
Ort: Eißendorfer Straße 169 21073 Hamburg - Harburg
Bauherr: Dr.Folker Alexander Heinecke
AG: IBK-Ingenieurbüro Carsten Kröger
Leistungen (Leistungserstellung: 10/2018):
- Bestandsaufnahme: Grundrisse, Ansichten, Querschnitt, Dachdetail
- Berechnungen: Gebäudegrundfläche, Nutzflächen,
Konstruktionsflächen, Bruttorauminhalt, Baubeschreibung
BV: Neubau eines Wohngebäudes mit 4 Wohnungseinheiten
Ort: Fangdieckstraße 151 a+b 22547 Hamburg-Lurup
Bauherr: Ali Gerdellay und Ymerli Gerdellay
AG: Ingenieurbüro Niels Härtel
Leistungen (Leistungserstellung: 09/2018):
- Bestandsaufnahme: Planung von konstruktive Ausführungsdetails
- Berechnungen: Gebäudegrundfläche, Nutzflächen,
Konstruktionsflächen, Bruttorauminhalt, Baubeschreibung
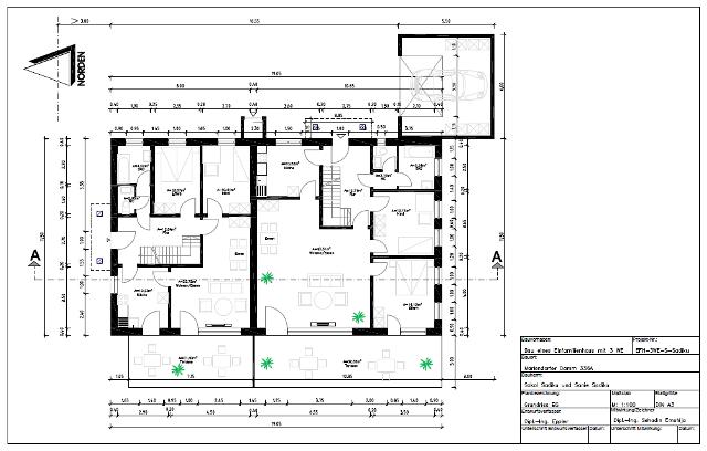
BV: Entwurf eines Einfamilienhauses mit 3 Wohnungseinheiten
Ort: Mariendorfer Damm 336 A 12107 Berlin
Bauherr: Sokol Sadiku und Sanije Sadiku
Leistungen (Leistungszeitraum: 08/2015):
- Entwurf von Grundrisse, Ansichten, Querschnitt, Lageplan
- Berechnungen: Gebäudegrundfläche, Nutzflächen,
Konstruktionsflächen, Bruttorauminhalt, Baubeschreibung
PROJEKTE - AUSFÜHRUNG: Bauleitung I Qualitätskontrolle







































































